


☆毎週土・日・祝日現地案内会開催中☆【チラシ】☆こちらをクリック☆
広々LDK16帖!陽当良好!子育てにも適した環境です!完成施工例ご内覧可!
ご案内は、糀谷徒歩2分の当店迄。仲介手数料50%OFF対象物件!

☆毎週土・日・祝日現地案内会開催【チラシこちらをクリック】☆
>新価格!南公道面!所有権!陽当・眺望良好!広々LDK19帖!子育てに最適な住環境!
即ご内覧可・現地へのご案内は、当店まで。仲介手数料50%OFF対象物件!

☆新価格!3LDK+P☆【チラシ】こちらをクリック☆
陽当良好!子育てにも適した環境です!完成間近!
詳細・ご内覧・ご案内は当店迄! ※仲介手数料50%OFF対象物件!

新規リフォーム済住宅!☆【チラシ】☆こちらをクリック☆
全室6帖以上!陽当良好!子育てにも適した環境です!
ご内覧・ご案内は、糀谷駅徒歩2分の当店迄。

【現地見学随時受付中!】☆【チラシ】こちらをクリック☆
駅近物件!2階建!角地!子育てにも最適な住環境!
現地へのご案内・ご内覧は、当店まで。※

☆毎週土・日・祝日オープンハウス開催【チラシこちらをクリック】☆
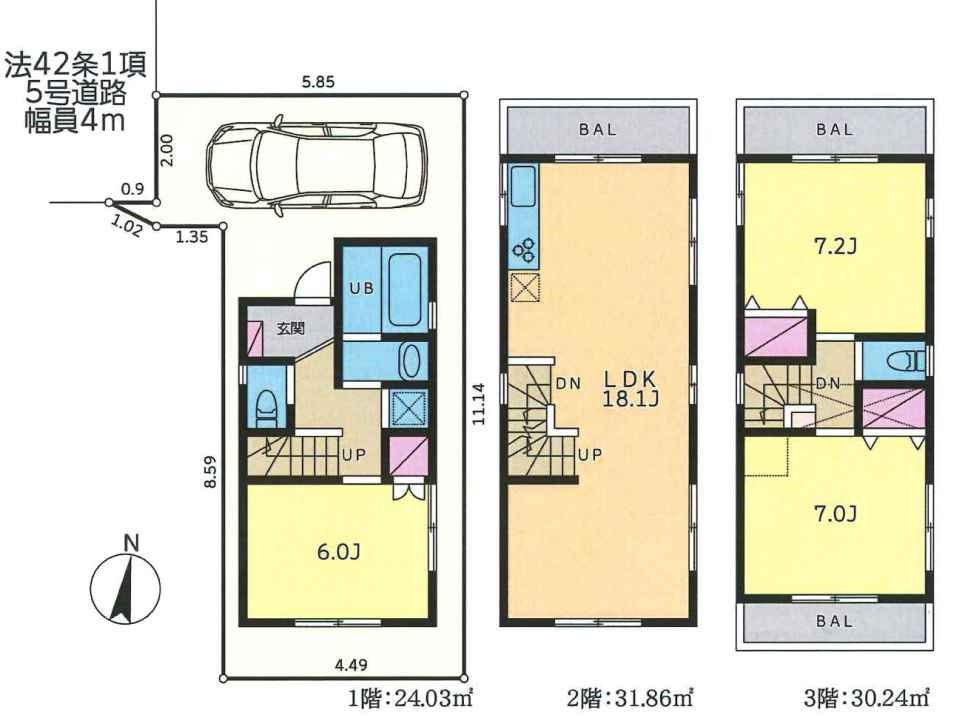
>公道面!所有権!陽当・眺望良好!広々LDK約18帖!子育てに最適な住環境!
現地へのご案内は、当店まで。仲介手数料50%OFF対象物件!
信頼
Trust
地域密着
Community
contact
アット
ホーム
at home
※キャンペーン実施中!
・ご購入時の仲介手数料を最大50%OFFで応援します。
・ご売却時の仲介手数料を最大50%OFFで応募しています。
・無料査定実施中。
・大家さん募集中。
不動産のことなら「糀谷」駅徒歩2分のトマト住宅販売にお任せください!